カテゴリ:全エリア-売主物件
【建築条件なし売地×南道路!】 理想の住まいを自由設計で叶える区画。 ■お好きなハウスメーカーで建築可能。開放感と陽当たりに恵まれた、家族の未来を描ける住環境です。 ■弊社おすすめの屋上庭園付住宅のご提案も可能。理想の暮らしをカタチにできます 【立地・環境】 ■南道路に面し、明るく心地よい日当たりを確保 ■交通量が少なく、子育て世帯にも安心の落ち着いた住環境 ■木曽呂小学校まで徒歩14分で通学も安心 【利便性】 ■ベルク川口差間店まで徒歩9分、セブンイレブン川口差間店まで徒歩4分 ■日々のお買物に便利な生活利便施設が身近に揃う環
- 価格
- 1,680万円
-
所在地 埼玉県川口市東内野 土地面積 95.17m² 土地権利 所有権 地目 宅地 用途地域 第一種低層住居専 建ぺい率・容積率 50%・100%
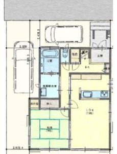
【中古住宅】春日部・米島 ◆東武アーバンパークライン「南桜井」駅徒歩10分 ◆米島ニュータウン内の閑静な住宅街 ◆1997年築セキスイハイム施工 ◆前面道路6mで駐車もラクラク ◆駐車スペース2台可(車種により異なります) ◆交通量が少なく、お子様を育みやすい環境 ◆幼稚園、小学校至近で子育て環境良好 ◆スーパー、コンビニ至近で買物便利な周辺環境 ★リフォーム工事内容 令和7年8月中旬完了済★ ・キッチン、吊戸交換 ・ユニットバス交換(1620サイズ) ・洗面化粧台・トイレ交換 ・天井、壁クロス交換 ・フローリング部分貼り替え ・畳交換 ・外壁、屋根塗り替え ・ハウスクリーニング
- 価格
- 2,180万円
-
間取 5LDK 建物面積 123.83m² 土地面積 154.79m² 土地権利 所有権 地目 宅地 用途地域 第一種低層住居専 建ぺい率・容積率 50%・80% 階数 地上 2階 築年月 1997/04 構造 軽量鉄骨

価格
面積















